Lease Information

Terms: 36-60 months
Tenant Provides: Gas, Electric, Phone/Data, In-Suite Janitorial, Liability Insurance
Landlord Provides: Taxes, Property Insurance, Snow Removal, Common Area Janitorial, Water/Sewer, Lawn Care and Property Management

Suite Availability

Suite

Rate/SF/Yr

Rentable SF

Monthly Rent

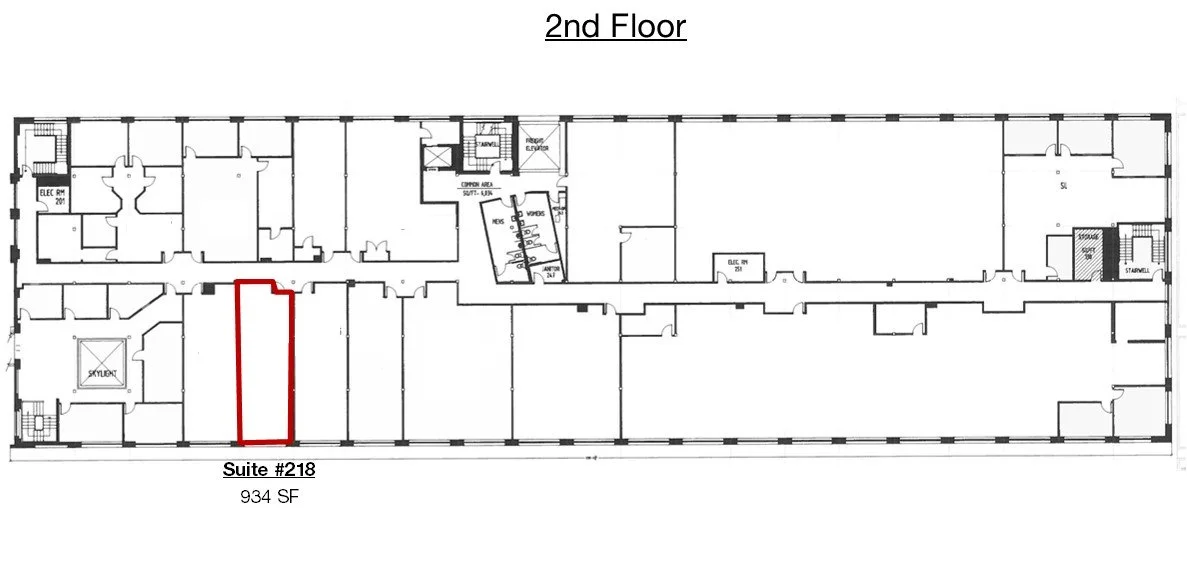
218

Virtual Tours

SUITE 218 VIDEO N/A
suite 308 video
suite 331 video
suite 334 video
suite 355 video
suite 458 video
suite 484 video
suite 489 video

2,786

308

3,898

331

1,965

334

1,955

355

1,607

484

2,392

489

934

6,113

3,749

430

458

$3,703.06

$15.95/SF

$5,189.09

$15.95/SF

$2,611.81

$15.95/SF

$2,598.52

$15.95/SF

$2,135.97

$15.95/SF

$3,179.37

$15.95/SF

$8,125.20

$15.95/SF

$1,241.44

$15.95/SF

suite 430 video n/a

$4,983.05

$15.95/SF

floor plans


Executive Suites

Terms : Minimum 12 months; lease auto renews with 3% annual increases
Lease Type: Gross Lease
Tenant Provides: Phone/Data, In-Suite Janitorial, Liability Insurance
Landlord Provides: Taxes, Property Insurance, Snow Removal, Common Area Janitorial, Water/Sewer, Lawn Care, Property Management, Gas, Electric

Unfinished Suites Build-Out

TI Allowance $ TBD. Allowance Finishes: Floors, Lighting, HVAC Distribution, Drywall and Paint


for more information, contact:

HILLARY TAATJES WOZNICK

616.862.1179
hillary@naiwwm.com

PAUL OOSTERBAAN

616.575.7054
paulo@naiwwm.com